商品明細

汽車修護手冊-185.186 LEXUS 凌志汽車 RX300

  • 料號:LVT-185.186
  • 規格:【適用性】2018~2022 2.0L
  • 原價:$8,000
  • 售價:$3,500
加入購物車

商品詳細介紹Product Introduction

185.186期 LEXUS RX300
2.0L 2018~2022


壹、車型介紹
一、 概論
二、 規格
三、 車身及引擎識別碼
(一)車身識別碼說明
四、 車輛識別牌、引擎和變速箱
(一)車輛識別碼位置
(二)引擎號碼位置
(三)傳動橋系列號壓印位置
五、 車輛規格
(一)主要尺寸、車輛品質和性能
(二)引擎、引擎電氣和底盤
 
貳、基本保養與規格
一、 基本規格-8AR-FTS
二、 維修資料-8AR-FTS
三、 引擎大修扭力規格
四、 引擎組件螺栓拆卸及安裝順序
(一)凸輪軸
(二)凸輪軸殼總成
(三)汽缸蓋總成
(四)汽缸體
(五)其他拆裝順序
五、 基本規格、檢查與初始化
(一)基本怠速檢查
(二)基本點火正時檢查
(三)基本怠速學習設定步驟(用儀器)
(四)壓縮壓力檢查
(五)低壓燃油壓力檢查
(六)高壓燃油壓力檢查
(七)檢查CO/HC
(八)引擎系統初始化設定
(九)U661E六速變速箱系統初始化
(十)駕駛側電動窗馬達初始化
(十一)滑動天窗系?初始化
(十二)電動背門系統初始化
(十三)電動窗設定
(十四)保養歸零
(十五)胎壓歸零
(十六)空調濾網位置
(十七)12V電瓶位置
六、 正時鏈條拆卸與安裝
(一)正時鏈條機構圖
(二)正時鏈條拆卸方式
(三)引擎平衡器總成安裝方式
(四)正時鏈條安裝方式
七、 引擎驅動皮帶
 
參、引擎控制系統
一、 系統說明
(一)系統概述說明
(二)8AR-FTS引擎系統元件位置圖
(三)引擎控制系統圖
二、 引擎控制系統元件說明
(一)引擎控制電腦
(二)主繼電器
(三)點火線圈
(四)曲軸位置感知器(CKP)
(五)凸輪軸位置感知器(進/排氣側)
(六)爆震感知器
(七)燃油控制系統
(八)燃油泵浦控制(低壓泵)
(九)燃油泵浦控制(高壓泵)
(十)減壓閥
(十一)燃油壓力感知器(高壓)
(十二)燃油壓力感知器(低壓)
(十三)噴油嘴(進氣口噴射)
(十四)噴油嘴(直接噴射)
(十五)空氣質量計
(十六)進氣溫度感知器
(十七)渦輪增壓控制系統
(十八)NO1渦輪增壓壓力/進氣溫度感知器
(十九)NO2渦輪增壓壓力感知器
(二十)空氣旁通閥
(二十一)廢氣旁通閥/真空調節閥
(二十二)增壓空氣冷卻泵
(二十三)電子節氣門總成
(二十四)油門踏板位置感知器
(二十五)可變氣門正時(VVT-iW)-進氣側
(二十六)凸輪軸正時機油控制電磁閥(VVT-iW)-進氣側
(二十七)可變氣門正時(VVT-i)-排氣側
(二十八)凸輪軸正時機油控制電磁閥(VVT-i)-排氣側
(二十九)三元觸媒轉換器
(三十)1號空燃比感知器(B1S1)
(三十一)2號空燃比感知器(B1S2)
(三十二)含氧感知器(B1S2)
(三十三)清汙控制閥VSV
(三十四)壓差感知器
(三十五)1號真空開關閥總成
(三十六)引擎機油壓力感知器
(三十七)引擎機油壓力開關閥
(三十八)引擎機油溫度感知器
(三十九)冷卻風扇
(四十)引擎冷卻液溫度感知器
(四十一)大氣壓力感知器
(四十二)煞車燈開關
(四十三)車速感知器
(四十四)起動馬達
(四十五)檔位開關
(四十六)發電機
(四十七)蓄電池感知器
(四十八)巡航控制主開關
(四十九)組合開關總成
三、 自我診斷說明
(一)讀取故障碼
(二)清除故障碼(診斷儀器)
(三)清除故障碼DTC(手動方式)
(四)診斷接頭位置圖
(五)8AR-FTS引擎故障碼對照表
(六)故障碼說明
 
肆、自動變速箱控制系統8AR-FTS配六速
一、 U661E自動變速箱控制
(一)U661E六速變速箱系統概述
(二)U661E變速箱系統元件位置圖
(三)U661E-六速自動變速箱線路圖
二、 基本保養、初始化與調整
(一)失速測試
(二)換檔時遲滯測試
(三)路試測試
(四)手動換檔測試
(五)油壓測試
(六)U661E六速自排變速箱油更換方式
(七)U661E六速自排變速箱註冊方式
(八)U661E六速變速箱初始化
三、 U661E自動變速箱組成元件
(一)變速箱控制電腦
(二)變速箱換檔撥片開關總成
(三)檔位開關
(四)變速箱控制開關總成
(五)組合開關總成
(六)變速箱油溫感知器
(七)換檔電磁閥SLT
(八)換檔電磁閥SLU
(九)換檔電磁閥SL
(十)換檔電磁閥SL1
(十一)換檔電磁閥SL2
(十二)換檔電磁閥SL3
(十三)換檔電磁閥SL4
(十四)變速箱轉速感知器NT
(十五)變速箱轉速感知器NC
(十六)3號ATF壓力開關
四、 自我診斷說明
(一)讀取故障碼
(二)清除故障碼(診斷儀器)
(三)清除故障碼(手動方式)
(四)診斷接頭位置圖
(五)變速箱故障碼對照表
(六)故障碼說明
 
伍、車輛穩定控制系統
一、 車輛穩定控制系統概述
(一)系統說明
(二)車輛穩定元件位置圖
(三)車輛穩定系統線路圖
二、 基本保養與調整
(一)煞車踏板檢查與調整
(二)煞車系統液位與排氣檢查
(三)車輛穩定性控制系統校準
(四)駐車制動強行解除
三、 車輛穩定系統組成元件
(一)車輛穩定電腦
(二)前輪速感知器
(三)後輪速感知器
(四)搖擺和加速度感知器
(五)轉向角度感知器
(六)VSC OFF開關
(七)煞車燈開關
(八)制動踏板負載開關
四、 自我診斷說明
(一)讀取故障碼
(二)清除故障碼
(三)診斷接頭位置圖
(四)車輛穩定故障碼對照表
(五)故障碼說明
 
陸、SRS輔助防護系統
一、 SRS控制系統
(一)系統說明
(二)安全氣囊系統元件位置圖
(三)SRS安全氣囊線路圖
二、 氣囊注意事項
三、 安全氣囊系統組成元件
(一)安全氣囊電腦
(二)駕駛座安全氣囊
(三)前乘客座安全氣囊
(四)儀錶板下1號膝部氣囊總成
(五)簾幕式安全氣囊總成
(六)前排座椅側邊氣囊總成
(七)後排側邊氣囊總成
(八)左前/右前撞擊感知器
(九)左/右車門側邊撞擊感知器和左/右後撞擊感知器
(十)中柱撞擊感知器
(十一)乘客座氣囊切斷開關總成
(十二)座椅位置感知器
(十三)前乘客座座椅座墊感知器總成
(十四)前排座椅內安全帶扣總成
(十五)前排座椅外側安全帶總成
(十六)後排1號座椅外安全帶總成
四、 自我診斷說明
(一)診斷儀器讀取故障碼
(二)診斷儀器清除故障碼
(三)診斷接頭位置圖
(四)安全氣囊故障碼對照表
(五)故障碼說明
 
柒、冷氣空調系統
一、 冷氣系統簡介
(一)概述
(二)空調系統基本規格
二、 冷氣空調系統元件位置圖
三、 空調系統控制
(一)主要零部件功能
(二)系統控制
四、 空調系統控制線路圖
五、 伺服馬達初始化
六、 空調控制系統組成元件
(一)空調放大器總成
(二)壓縮機電磁閥
(三)鼓風機馬達(帶風扇)
(四)伺服馬達元件說明
(五)空氣混合風門伺服馬達(駕駛側)
(六)空氣混合風門伺服馬達(乘客側)
(七)新鮮空氣/再循環風門伺服馬達
(八)乘客模式風門伺服馬達
(九)後模式風門伺服馬達
(十)ECO模式開關
(十一)PTC加熱器
(十二)車內溫度感知器
(十三)環境溫度感知器
(十四)蒸發器溫度感知器
(十五)空調壓力感知器
(十六)陽光感知器
(十七)換氣通風感知器
(十八)離子發生器
七、 自我診斷說明
(一)讀取故障碼
(二)清除故障碼
(三)診斷接頭位置圖
(四)車輛穩定故障碼對照表
(五)空調系統故障碼說明
 
捌、保險絲與繼電器
一、 引擎室繼電器與保險絲盒位置
二、 引擎室保險絲盒R/B NO1繼電器說明
三、 引擎室保險絲盒R/B NO1單元A說明
四、 引擎室保險絲盒R/B NO1單元B說明
五、 引擎室保險絲盒NO2和NO3繼電器說明
六、 室內各控制電腦和繼電器盒位置
七、 室內保險絲盒(視圖-C)說明
 
玖、全車線路圖
一、 電源分配系統線路圖
二、 繼電器線路圖
三、 多路通信系統(CAN)線路圖
四、 多路通信系統(AVC-CAN)線路圖
五、 起動系統線路圖(8AR-FTS)
六、 晶片認證系統線路圖
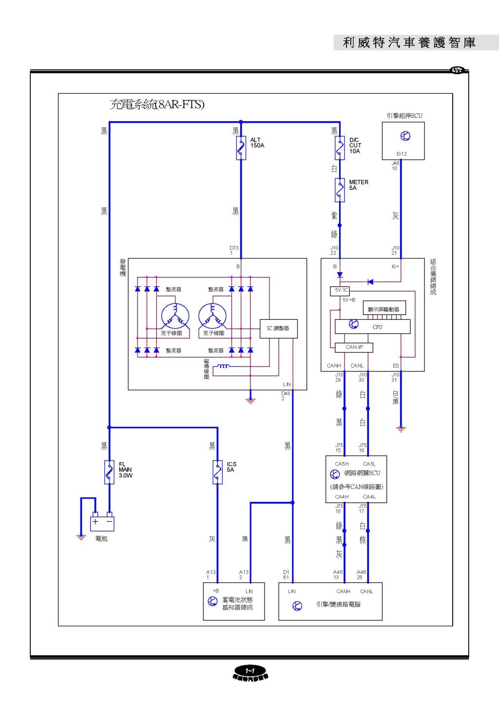
七、 充電系統線路圖(8AR-FTS)
八、 點火系統線路圖(8AR-FTS)
九、 引擎控制系統線路圖(8AR-FTS)
十、 變速箱控制系統線路圖(U661E)
十一、 起動和停止系統線路圖
十二、 動態雷達、碰撞預測、車道偏離警示/保持輔助線路圖
十三、 DLC3診斷接頭系統線路圖
十四、 防盜系統線路圖
十五、 門鎖控制系統線路圖
十六、 車燈提醒器線路圖
十七、 車身系統線路圖
十八、 前頭燈線路圖
十九、 前照燈清洗器線路圖
二十、 自動燈光控制線路圖
二十一 前霧燈線路圖
二十二 後霧燈線路圖
二十三 頭燈開關總成線路圖
二十四 車內照明燈線路圖
二十五 尾燈線路圖
二十六 照明燈線路圖
二十七 轉向信號和危險警告燈線路圖
二十八 煞車燈線路圖
二十九 倒車燈線路圖
三十、 4WD系統線路圖
三十一 自適應可調懸架系統線路圖
三十二 EPS電動轉向系統線路圖
三十三 SRS安全氣囊系統線路圖
三十四 座椅安全帶警告線路圖
三十五 輪胎壓力警告系統線路圖
三十六 電動傾斜和電動伸縮系統線路圖
三十七 遙控後視鏡系統線路圖
三十八 雙重鎖止系統線路圖
三十九 電動車窗系統線路圖
四十、 前刮水器和清洗器線路圖
四十一 後刮水器和清洗器線路圖
四十二 全景天窗線路圖
四十三 滑動天窗線路圖
四十四 電動尾門線路圖
四十五 電動座椅(駕駛座椅帶座椅位置存儲器)線路圖
四十六 電動座椅(前排乘客座椅帶座椅位置存儲器)線路圖
四十七 電動座椅(後排1號座椅)線路圖
四十八 溫度控制座椅線路圖
四十九 前排座椅加熱器線路圖
五十、 後排座椅加熱器線路圖
五十一 加熱式方向盤系統線路圖
五十二 自動防眩目EC後視鏡線路圖
五十三 排檔鎖定系統線路圖
五十四 喇叭線路圖
五十五 電動張力調節器線路圖
五十六 選裝件連接器(掛車牽引)線路圖
五十七 電源插座線路圖
五十八 無線充電系統線路圖
五十九 擋風玻璃除冰器線路圖
六十、 後窗除霧器線路圖
六十一 時鐘線路圖
六十二 電熱擋風玻璃除霜器系統線路圖
六十三 盲點監控系統線路圖
六十四 組合儀錶線路圖
六十五 冷卻風扇系統線路圖
六十六 冷氣空調系統線路圖
六十七 ABS/VSC煞車系統線路圖
六十八 電子手煞車系統線路圖
六十九 駐車輔助感知器系統線路圖
七十、 全景監視系統線路圖
七十一 車載通信系統線路圖
七十二 音響系統線路圖(帶LEXUS導航系統)
七十三 LEXUS導航系統線路圖
七十四 選裝件連接器線路圖

yes精彩頁面試閱yes






 

商品注意事項Product Notes

利威特汽修叢書皆編撰給專業技師使用,不收納拆裝步驟,較不適用一般車主。
書籍皆為繁體中文、黑白紙本印刷
 購買前請確認書籍年份及目錄,若對產品有任何問題,歡迎連絡!
►車型年份距今20年以上的書籍,紙本保存上外觀會有些許污漬,不影響資料內容,介意者勿下標,或是提前私訊確認狀況。
 
►寄送時間: 商品在下單日確認後3-5個工作天內送達(不含休假日)。
►送貨方式: 透過貨運或宅急便配通送達。運送費用為120元。
►送貨範圍: 限台灣本島地區;收貨地址不得為郵政信箱,否則無法寄送。
►商品保證: 收到商品時,若產品本身瑕疵或運送過程導致新品瑕疵,請先與本公司客服部門聯絡。
►智慧保障: 著作權相關商品(如專業技術工具書) : 無鑑賞期,僅接受瑕疵品退換貨。
►滿意保證: 根據消保法規定,消費者均享有商品到貨七天猶豫期之權益;但特別標定說明、特殊包裝商品、軟體類或影音光碟類產品不得拆封,否則恕不接受退貨。
►退貨說明: 退回商品必須是全新狀態且完整包裝〈保持商品、附件、包裝、廠商紙箱及所有附隨文件或資料之完整性〉,否則恕不接受退訂。但已拆封之電腦軟體、程式、錄音帶及錄影帶、CD、VCD、DVD、食品、花卉商品、衣服、包包及耗材,以及商品銷售網頁除網頁上特別載明之商品,均不接受退訂。
►退貨注意: 得退貨時請將商品無損及完整包裝,連同配件贈品,勿缺件,外盒勿損毀,請以廠商寄送時的包裝再原封備妥,若紙箱已遺失,請於商品外盒上再包裝,勿直接讓商品原廠外盒粘貼宅配單或書寫文字,原廠外盒損毀或是商品缺件,將無法受理退貨或視損毀程度折扣退款金額。〈到貨七天期限內申請,逾期未辦理將無法銷退〉。
 ►退貨程序: 請先Email通知我們客服人員,待確認退貨地址後,再將欲退貨之商品自費退回指定地址;待商品驗退無誤後即辦理退款手續。